|
产品展示
联系我们
地址:无锡市钱桥工业园
手机: 18168892286 传真:0510-82628805
|
|
产品展示
PRODUCT
当前位置:首页 > 产品展示
QSH 型减速器

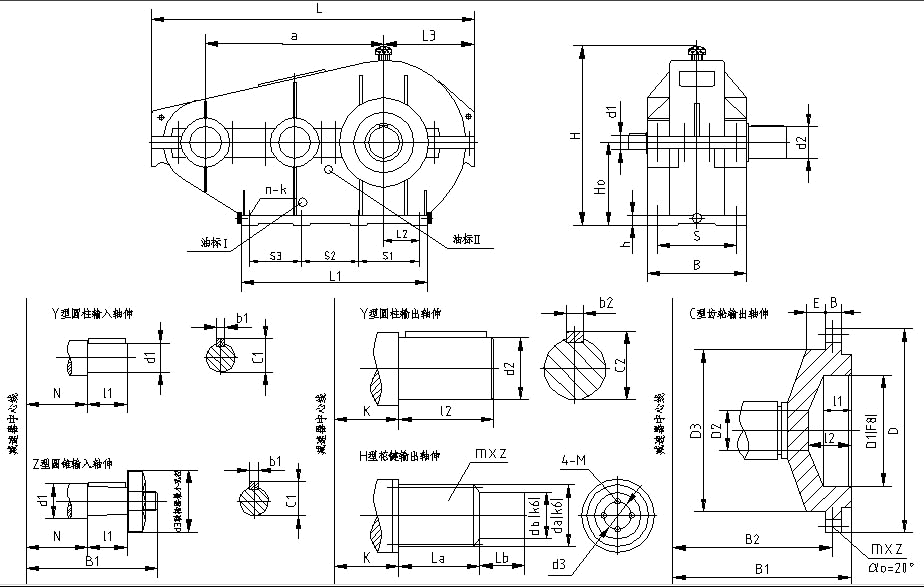
QSH 型减速器外形尺寸,见图18、表20和表21:

图18 QSH 型减速器外形尺寸
表20 QSH 型减速器外形尺寸
|
规
格 |
中心尺寸 |
外 形 尺 寸 |
地 脚 安 装 尺 寸 |
其 它 尺 寸 |
质量
(kg) |
|
a |
H0 |
L |
H |
B |
S |
S1 |
S2 |
S3 |
C |
h |
k |
n |
L1 |
L2 |
L3 |
N |
K |
|
250 |
250 |
125 |
490 |
263 |
190 |
150 |
220 |
|
|
50 |
20 |
18 |
4 |
310 |
100 |
140 |
100 |
103 |
72 |
|
320 |
320 |
160 |
630 |
338 |
205 |
165 |
265 |
|
|
75 |
25 |
18 |
4 |
385 |
125 |
183 |
120 |
125 |
133 |
|
400 |
400 |
200 |
770 |
411 |
240 |
210 |
330 |
|
|
80 |
25 |
23 |
4 |
460 |
140 |
215 |
140 |
145 |
222 |
|
500 |
500 |
250 |
930 |
486 |
310 |
260 |
230 |
235 |
|
80 |
30 |
23 |
6 |
610 |
185 |
250 |
175 |
180 |
350 |
|
630 |
630 |
315 |
1180 |
606 |
370 |
310 |
170 |
250 |
200 |
95 |
35 |
27 |
8 |
770 |
235 |
330 |
210 |
210 |
730 |
表21 QSH 型减速器外形尺寸
|
规格 |
Y 型圆柱输入轴伸 |
Z 型圆锥输入轴伸 |
Y 型圆柱输出轴伸 |
H 型花键输出轴伸 |
C 型齿轮输出轴伸 |
|
d1 l1 b1 c1 |
d1 d3 l1 B1 b1 c1 |
d2 L2 b2 c2 |
m×Z da La d3 M db Lb |
m×Z D D1 D2 D3 B1 B2 B E L1 L2 |
|
250 |
25 60 8 28 |
28 60 42 170 6 15.4 |
50 82 14 53.5 |
|
|
|
320 |
32 80 10 35 |
35 75 83 220 10 19 |
55 85 18 59 |
3×22 69 35 40 8 60 30 |
|
|
400 |
38 80 10 41 |
40 75 83 256 12 21.3 |
80 125 28 86 |
3×27 84 40 50 8 70 35 |
|
|
500 |
50 110 14 53.5 |
50 90 85 296 16 28 |
100 165 28 93 |
5×20 105 55 60 10 90 45 |
4×56 232 120 40 170 281 250 35 25 50 75 |
|
630 |
65 140 18 69 |
70 125 108 350 18 36.4 |
120 165 32 127 |
5×24 125 70 80 10 110 50 |
6×56 348 170 45 260 322 290 40 32 68 95 |
|