您好!欢迎您进入江苏龙一诺机械制造有限公司官网!
设为主页 加入收藏 客户留言
服务热线
181-6889-2286
专业生产摆线针轮减速机减速电机齿轮减速机
网站首页 企业简介 产品展示 客户服务 新闻中心 技术资讯 联系我们  
产品展示
联系我们

地址:无锡市钱桥工业园

手机:
18168892286
传真:0510-82628805

产品展示

PRODUCT

当前位置:首页 > 产品展示

TPG平面包络环面蜗杆减速器

TPG平面包络环面蜗杆减速器

TP型平面包络环面蜗杆减速机产品简介及标记

TP型平面包络环面蜗杆减速机(JB/T9051-1991)为平面一次包络蜗杆传动。中心距:100、125、160、200、250、315、400、500。速比:10、12.5、16、20、25、31.5、40、50、60。平面包络环面蜗杆减速机是一种新兴的传动装置,其承载能力大,传动效率高,结构紧凑、合理。这种减速机可以广泛地应用于各种传动机械中的减速传动,如冶金、矿产、起重、化工、建筑、橡塑、船舶等行业以及其它机械设备上,适用工作环境温度为-40℃~+40℃,输入轴转速不大于1500转/分,蜗杆轴可正反两方向旋转。此减速机是按照中华人民共和国机械行业标准JB/T9051——1999《平面包络环面蜗杆减速机》设计制造。

型号与标记示例

1 型号

标记示例

例 蜗杆在蜗轮之下, 中心距为200mm, 公称传动比为10, 第二种装配型式, 有风扇冷却的平面 包络环面蜗杆减速器: 减速器 TPU200 - 10 - 2F JB/T 9051—1999

TP型平面包络环面蜗杆减速机基本参数

中心距a                           (mm)

型号
中心距a
TPG
第一系列
80
100
第二系列
TPU
第一系列
125
160
200
250
315
400
500
第二系列
140
180
224
280
355
450
TPS
第一系列
125
160
200
250
315
400
500
第二系列
140
180
224
280
355
450
TPA
第一系列
125
160
200
250
315
400
500
第二系列
140
180
224
280
355
450

注:优先选用第一系列,表中第二系列的中心距仅提出型式规格。

减速器的公称传动比i

型      号
TPG      TPU       TPS        TPA
公称传动比i
10
12.5
16
20
25
31.5
40
50
63

蜗杆螺旋线方向   为右旋。

TPG80、TPG100、通用型减速机形式及外形尺寸(Ⅰ—Ⅲ)

TPG通用型减速器形式及外形尺寸                             (mm)

型号
a
B
B1
B2
C
C1
H
H1
L
L1
L2
L3
L4
l
l1
d
d1
b
b1
t
t 1
h
Ф
质量(kg)
TPG80
80
250
242
50
220
206
100
280
381
130
210
86
201
58
110
35
45
10
14
38
48.5
18
19
53
TPG100
100
290
284
58
250
240
110
318
464
160
235
102
254
82
110
40
55
12
16
43
59
20
19
85

TPG80、TPG100、通用型减速机形式及外形尺寸(Ⅳ—Ⅵ)

TPG通用型减速器形式及外形尺寸                             (mm)

型号
a
B
B1
C
C1
H
H1
L
L1
L2
L3
B2
l
l1
d
d1
t
t 1
b
b1
h
Ф
质量(kg)
TPG80
80
250
242
220
206
180
360
201
381
210
86
50
58
110
35
45
38
48.5
10
14
18
19
53
TPG100
100
290
284
250
240
210
415
254
464
235
102
58
82
110
40
55
43
59
12
16
20
19
85

TPG通用型减速器形式及外形尺寸                             (mm)

 

型号
a
(φ)D
h1
B
B1
C
C1
H
H1
L
L2
L3
L4
L5
l
l1
d
d1
b
b1
t
t 1
L6
h
Ф
质量(kg)
TPG80
80
140
5
270
260
240
230
110
86
210
100
180
180
201
58
110
35
45
10
14
38
48.5
75
18
19
53
TPG100
100
170
5
300
300
260
260
125
102
235
125
203
210
254
82
110
40
55
12
16
43
59
90
20
19
85

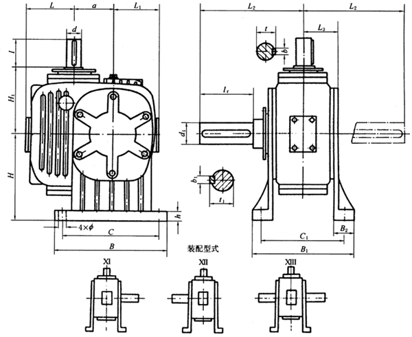
TPG80、TPG100、通用型减速机形式及外形尺寸(Ⅺ—XIII)

PG通用型减速器形式及外形尺寸                             (mm)

 

型号
a
B
B1
C
C1
H1
H
B2
L
L1
L2
L3
l
l1
d
d1
t
t 1
b
b1
h
Ф
质量(kg)
TPG80
80
230
242
220
206
143
180
50
100
98
210
86
58
110
35
45
38
48.5
10
14
18
19
53
TPG100
100
270
284
220
240
172
210
58
106
123
235
100
82
110
40
55
43
59
12
16
20
19
85

 

TPU125、TPU160、TPU200、TPU250、TPU315、TPU400、TPU500通用型减速机形式及外形尺寸

TPU通用型减速器形式及外形尺寸                             (mm)

型号
a
B
B1
B2
C
C1
H
H1
h
L
L1
L2
L3
L4
L5
l
l1
d
d1
d2
b
b1
t
t 1
Ф
质量(kg)
TPU125
125
300
300
70
250
250
125
422
30
307
320
185
280
217
175
82
140
40
70
80
12
20
43
74.5
19
157
TPU160
160
380
375
100
320
310
160
540
40
375
375
210
360
280
190
82
170
50
85
95
14
25
53.5
90
24
258
TPU200
200
450
450
125
370
370
200
650
40
420
400
235
435
345
225
82
170
55
95
110
16
28
59
101
28
475
TPU250
250
600
550
150
500
450
225
820
50
530
495
290
520
408
270
105
210
65
120
140
18
32
69
127
35
800
TPU315
315
720
590
120
630
500
280
990
65
630
600
360
605
492
345
130
250
80
140
160
22
36
85
148
39
1100
TPU400
400
850
720
160
750
620
320
1200
75
720
720
425
692
540
405
165
300
100
180
200
28
45
106
190
48
2150
TPU500
500
1060
900
200
920
760
400
1490
90
850
840
495
845
680
488
165
350
110
200
240
32
45
117
210
56
3600

TPS125、TPS160、TPS200、TPS250、TPS315、TPS400、TPS500、通用型减速机形式及外形尺寸

TPS通用型减速器形式及外形尺寸

型号
a
(Ф)
D
(Ф)
D1
h1
(Ф)
B
B1
B2
H
L
L1
L2
L3
L4
l
l1
d
d1
b
b1
t
t 1
h
Ф
质量
(kg)
TPS125
125
380
280
6
330
265
193
180
307
280
203
320
175
82
140
40
70
12
20
43
74.5
25
19
170
TPS160
160
530
380
10
470
338
268
200
375
365
280
375
190
82
170
50
85
14
25
53.5
90
40
24
290
TPS200
200
650
480
10
580
405
335
250
425
436
330
400
210
82
170
55
95
16
28
59
101
40
32
530
TPS250
250
800
600
12
700
495
400
280
530
520
406
495
270
105
210
65
120
18
32
69
127
50
35
930
TPS315
315
920
710
15
820
623
460
355
630
605
492
600
340
130
250
80
140
22
36
85
148
65
39
1300
TPS400
400
1100
850
15
1000
740
550
420
720
692
540
720
405
165
300
100
180
28
45
106
190
75
48
2450
TPS500
500
1340
1060
20
1200
920
675
530
850
845
680
840
488
165
350
110
200
32
45
117
210
90
56
3850

 

TPA125、TPA160、TPA200、TPA250、TPA315、TPA400、TPA500、通用型减速机形式及外形尺寸

 

TPA通用型减速器形式及外形尺寸

型号
a
B
B1
B2
C
C1
H
H1
h
L
L1
L2
L3
L4
L5
l
l1
d
d1
d2
b
b1
t
t 1
Ф
质量(kg)
TPA125
125
360
300
50
310
250
180
438
30
307
320
185
280
217
175
82
140
40
70
80
12
20
43
74.5
19
165
TPA160
160
460
320
80
400
260
225
550
40
375
375
210
365
280
190
82
170
50
85
95
14
25
53.5
90
24
285
TPA200
200
540
400
100
450
320
250
658
40
420
400
265
436
345
224
82
170
55
95
110
16
28
59
101
28
510
TPA250
250
720
480
120
620
380
315
792
50
530
495
290
520
406
270
105
210
65
120
140
18
32
69
127
35
900
TPA315
315
850
600
140
750
500
400
1000
65
630
600
360
605
492
345
130
250
80
140
160
22
36
85
148
39
1250
TPA400
400
950
720
170
850
620
500
1200
75
720
720
425
690
540
410
165
300
100
180
200
28
45
106
190
48
2300
TPA500
500
1180
900
200
1040
760
630
1530
90
850
840
495
845
680
488
165
350
110
200
240
32
45
117
210
56
3700

 

TP型平面包络环面蜗杆减速机的额定输入功率P1(80~125)

中心距a(mm)
传动比i
输入轴转速n1(r/min)
500
600
750
1000
1500
额定输入功率P1(kW)
80
10.0
12.5
16.0
20.0
25.0
31.5
40.0
50.0
63.0
2.51
2.07
1.75
1.36
1.10
0.92
0.70
0.57
0.49
2.83
2.35
2.01
1.53
1.25
1.05
0.79
0.63
0.55
3.21
2.74
2.34
1.78
1.45
1.23
0.92
0.74
0.67
3.85
3.31
2.83
2.17
1.76
1.47
1.08
0.89
0.78
4.94
4.17
3.57
2.74
2.23
1.88
1.42
1.13
0.99
100
10.0
12.5
16.0
20.0
25.0
31.5
40.0
50.0
63.0
4.85
4.06
3.46
2.64
2.15
1.81
1.37
1.09
0.96
5.17
4.55
3.90
2.98
2.44
2.04
1.53
1.24
1.08
6.30
5.27
4.55
3.46
2.81
2.36
1.78
1.43
1.25
7.52
6.26
5.42
4.16
3.38
2.83
2.15
1.72
1.50
8.23
7.78
6.66
5.19
4.24
3.56
2.69
2.16
1.88
125
10.0
12.5
16.0
20.0
25.0
31.5
40.0
50.0
63.0
9.17
7.66
6.56
5.08
4.09
3.43
2.59
2.09
1.82
10.00
8.46
7.42
5.68
4.58
3.84
2.90
2.33
2.03
11.76
9.84
8.48
6.43
5.29
4.44
3.35
2.70
2.34
13.91
11.66
10.21
7.78
6.28
5.27
3.98
3.19
2.78
17.11
13.97
12.29
9.42
7.71
6.47
4.87
3.92
3.41

TP型平面包络环面蜗杆减速机的额定输入功率P1(160~500)

中心距a(mm)
传动比i
输入轴转速n1(r/min)
500
600
750
1000
1500
额定输入功率P1(kW)
160
10.0
12.5
16.0
20.0
25.0
31.5
40.0
50.0
63.0
18.94
15.75
13.55
10.40
8.48
7.12
5.37
4.32
3.76
21.13
17.75
15.23
11.76
9.65
8.05
6.07
4.89
4.25
23.99
20.16
17.43
13.34
11.03
9.18
6.93
5.58
4.86
27.94
23.63
20.48
15.75
12.81
10.82
8.11
6.51
5.67
33.72
28.67
25.31
19.01
15.54
13.02
9.84
7.89
6.87
200
10.0
12.5
16.0
20.0
25.0
31.5
40.0
50.0
63.0
35.11
29.72
25.10
19.53
15.65
13.23
9.92
8.10
7.27
38.87
32.76
28.35
21.53
17.33
14.60
11.03
8.85
7.70
43.61
36.86
31.40
24.15
19.53
16.38
12.39
9.96
8.67
50.94
41.90
35.91
27.72
22.89
19.22
14.49
11.66
10.13
58.93
50.61
42.84
33.08
27.09
22.79
17.22
13.76
11.97
250
10.0
12.5
16.0
20.0
25.0
31.5
40.0
50.0
63.0
60.98
50.08
44.63
34.55
28.14
23.63
17.75
14.39
12.50
67.35
57.33
49.67
37.80
30.98
26.04
19.64
15.86
13.76
76.36
64.68
55.44
42.21
34.76
29.19
20.05
17.75
15.33
87.23
72.98
62.58
49.04
39.90
33.50
25.20
20.27
16.59
102.90
89.04
74.45
57.75
47.25
43.16
29.93
24.05
20.90
315
10.0
12.5
16.0
20.0
25.0
31.5
40.0
50.0
63.0
116.90
99.96
83.90
65.10
53.45
44.94
33.81
27.20
23.63
127.80
108.20
91.88
71.09
58.59
49.14
37.07
29.82
25.83
148.10
118.70
102.80
78.54
64.89
54.50
41.06
33.08
28.88
157.50
134.40
117.60
89.25
74.34
62.37
47.04
38.80
33.92
187.72
159.60
136.50
104.40
87.15
72.24
54.39
44.31
38.54
400
10.0
12.5
16.0
20.0
25.0
31.5
40.0
50.0
63.0
222.20
193.20
170.00
131.30
105.00
88.52
66.57
53.55
46.41
257.40
215.30
183.80
141.80
114.50
96.92
72.24
58.70
51.14
276.90
236.30
203.70
156.50
128.10
107.10
80.85
65.21
56.70
311.00
262.50
230.00
177.50
144.90
121.80
91.98
74.03
64.37
359.90
304.50
264.60
200.60
164.90
138.60
104.70
84.11
73.19
500
10.0
12.5
16.0
20.0
25.0
31.5
40.0
50.0
63.0
393.90
329.70
286.70
218.40
180.60
152.30
114.50
92.82
80.85
424.40
361.20
306.60
240.50
198.50
164.90
126.00
101.40
88.31
462.50
395.90
340.20
263.60
219.50
183.80
138.60
112.40
97.34
511.50
432.60
582.50
486.20
431.60
326.60
278.30
233.10
176.40
141.80
122.90
382.20
293.00
243.60
206.90
154.40
123.90
108.20

注:1.不带风扇的减速器,其功率值为本表的0.6~0.75倍。

         2.红框内为v>10m/s,应采用循环润滑。

TP型平面包络环面蜗杆减速机的额定输出转矩T2

 

中心距a(mm)
传动比i
输入轴转速n1(r/min)
500
600
750
1000
1500
输出转矩T2(N·m)
80
10.0
12.5
16.0
20.0
25.0
31.5
40.0
50.0
63.0
416
424
450
424
421
411
381
368
386
391
402
434
404
402
394
361
350
361
363
383
414
374
382
389
352
336
371
330
351
379
348
353
353
313
311
327
282
295
319
296
297
301
274
263
276
100
10.0
12.5
16.0
20.0
25.0
31.5
40.0
50.0
63.0
833
863
920
855
852
836
771
740
781
740
804
872
815
813
796
731
719
748
738
763
833
758
769
776
704
681
721
667
686
752
690
701
707
649
624
659
487
569
616
580
587
592
540
523
550
125
10.0
12.5
16.0
20.0
25.0
31.5
40.0
50.0
63.0
1574
1625
1744
1649
1622
1590
1465
1416
1485
1431
1497
1662
1554
1529
1502
1383
1353
1401
1376
1424
1554
1406
1448
1460
1330
1288
1352
1234
1279
1418
1292
1303
1315
1200
1157
1221
1012
1022
1138
1054
1066
1076
979
947
998
160
10.0
12.5
16.0
20.0
25.0
31.5
40.0
50.0
63.0
3254
3344
3600
3375
3360
3296
3032
2924
3074
3025
3141
3411
3217
3223
3148
2896
2841
2941
2808
2918
3194
2920
3018
3016
2751
2661
2806
2480
2593
2846
2615
2659
2700
2444
2361
2489
1995
2098
2345
2129
2150
2166
1978
1906
2009
200
10.0
12.5
16.0
20.0
25.0
31.5
40.0
50.0
63.0
6032
6311
6670
6338
6199
6125
5607
5486
5942
5565
5797
6350
5891
5789
5706
5264
5140
5322
5106
5336
5754
5286
5343
5384
4919
4755
5006
4521
4599
4990
4603
4752
4796
4370
4229
4446
3487
3703
3969
3704
3749
3791
3462
3327
3503
250
10.0
12.5
16.0
20.0
25.0
31.5
40.0
50.0
63.0
10710
10875
12132
11476
11415
11225
10301
10026
10523
9857
10374
11378
10583
10596
10439
9623
9461
9791
9135
9569
10386
9454
9732
9829
8165
8697
9095
7909
8185
8888
8332
8473
8561
7793
7545
7482
6220
6657
7049
6614
6689
7353
6170
5968
6284
315
10.0
12.5
16.0
20.0
25.0
31.5
40.0
50.0
63.0
20531
21706
22807
21624
21683
21349
19621
18952
19893
18704
19579
21048
19904
20039
19700
18163
17789
18380
17717
17561
19258
17592
18168
18353
16722
16208
17135
14281
15073
16703
15163
15788
15940
14547
14443
15298
11316
11933
12924
11958
12339
12308
11213
10996
11587
400
10.0
12.5
16.0
20.0
25.0
31.5
40.0
50.0
63.0
39025
41954
46214
43614
42595
42053
38634
37314
39072
37673
38961
42106
39703
49424
38855
35397
35019
36391
33126
34961
38161
35055
35867
36066
32927
31952
33642
28201
29441
32667
30158
30774
31129
28446
27559
29032
21757
22768
25055
22977
23348
23615
21587
20874
22006
500
10.0
12.5
16.0
20.0
25.0
31.5
40.0
50.0
63.0
69181
71595
77939
72547
73264
72352
66450
64677
68066
62115
65363
70237
67338
67894
66108
61738
60493
62841
55330
53247
63733
59045
61458
61895
56446
55074
57755
46382
48519
35214
36353
40867
37410
39404
39716
36369
35191
36953
54285
49782
51736
52878
47750
46123
48799

注:1.不带风扇的减速器,其转矩值为本表的0.6~0.75倍。

                2.红框内为v>10m/s,应采用循环润滑。

                3.本标准减速器可承受短时间峰值负荷,峰值转矩为额定转矩的2.5倍。

TP型平面包络环面蜗杆减速机的传动总效率η

中心距a(mm)
传动比i
输入轴转速n1(r/min)
500
600
750
1000
1500
效率η(%)
80
10.0
12.5
16.0
20.0
25.0
31.5
40.0
50.0
63.0
87
86
84
82
80
74
71
68
65
87
86
85
83
81
75
72
70
66
89
88
87
83
83
79
75
72
69
90
89
88
84
84
80
76
73
70
90
89
88
85
84
80
76
73
70
100~200
10.0
12.5
16.0
20.0
25.0
31.5
40.0
50.0
63.0
90
89
87
85
83
77
74
71
68
90
89
88
86
84
78
75
73
69
92
91
90
86
86
82
78
75
72
93
92
91
87
87
83
79
76
73
93
92
91
88
87
83
79
76
73
250~315
10.0
12.5
16.0
20.0
25.0
31.5
40.0
50.0
63.0
92
91
89
87
85
79
76
73
70
92
91
90
88
86
80
77
75
71
94
93
92
88
88
84
80
77
74
95
94
93
89
89
85
81
78
75
95
94
93
90
89
85
81
78
75
400~500
10.0
12.5
16.0
20.0
25.0
31.5
40.0
50.0
63.0
92
91
89
87
85
79
76
73
70
92
91
90
88
86
80
77
75
71
94
93
92
88
88
84
80
77
74
95
94
93
89
89
85
81
78
75
95
94
93
90
89
85
81
78
75

TP型平面包络环面蜗杆减速机蜗杆蜗轮啮合滑动速度v

输入轴转速n1(r/min)
传动比i
中心距a(mm)
80
100
125
160
200
250
315
400
500
滑动速度v(m/s)
500
10.0
12.5
16.0
20.0
25.0
31.5
40.0
50.0
63.0
1.0
1.0
0.8
0.8
0.8
0.8
0.8
0.8
0.8
1.2
1.2
1.0
1.0
1.1
1.0
1.0
1.1
1.1
<, DIV align=center>1.5
 
1.5
1.2
1.3
1.3
1.2
1.3
1.3
1.3
1.9
1.9
1.6
1.6
1.7
1.6
1.6
1.7
1.7
2.4
2.4
2.0
2.0
2.1
1.9
2.0
2.0
2.1
3.1
3.1
2.4
2.4
2.4
2.5
2.3
2.4
2.4
3.8
3.8
3.1
3.0
3.0
3.1
2.9
3.0
3.0
4.8
4.9
3.8
3.7
3.8
3.8
3.6
3.7
3.8
6.0
6.0
4.9
4.7
4.8
4.9
4.6
4.7
4.8
750
10.0
12.5
16.0
20.0
25.0
31.5
40.0
50.0
63.0
1.5
1.5
1.2
1.2
1.2
1.2
1.2
1.2
1.3
1.8
1.8
1.5
1.6
1.6
1.5
1.5
1.6
1.6
2.3
2.3
1.9
1.9
1.9
1.8
1.9
1.9
2.0
2.8
2.9
2.4
2.4
2.5
2.3
2.4
2.5
2.5
3.6
3.6
3.0
3.1
3.1
2.9
3.0
3.1
3.1
4.6
4.6
3.7
3.5
3.6
3.7
3.5
3.6
3.7
5.7
5.7
4.6
4.4
4.5
4.6
4.3
4.5
4.6
7.3
7.3
5.8
5.5
5.7
5.8
5.4
5.6
5.7
9.1
9.0
7.3
7.0
7.1
7.3
6.8
7.1
7.2
1000
10.0
12.5
16.0
20.0
25.0
31.5
40.0
50.0
63.0
2.0
2.0
1.6
1.6
1.6
1.5
1.6
1.6
1.7
2.4
2.4
2.1
2.1
2.2
2.0
2.1
2.2
2.2
3.1
3.1
2.5
2.6
2.6
2.4
2.5
2.6
2.7
3.8
3.8
3.2
3.3
3.3
3.1
3.2
3.3
3.4
4.7
4.8
4.0
4.1
4.1
3.9
4.0
4.1
4.2
6.1
6.2
4.9
4.7
4.8
4.9
4.6
4.8
4.9
7.6
7.6
6.2
5.9
6.1
6.1
5.8
6.0
6.1
9.7
9.7
7.7
7.4
7.6
7.7
7.2
7.5
7.6
12.1
12.1
9.7
9.3
9.5
9.7
9.1
9.4
9.7
1500
10.0
12.5
16.0
20.0
25.0
31.5
40.0
50.0
63.0
3.0
3.0
2.4
2.4
2.5
2.3
2.4
2.4
2.5
3.6
3.6
3.1
3.1
3.3
3.0
3.1
3.2
3.2
4.6
4.6
3.7
3.9
3.9
3.6
3.8
3.9
4.0
5.7
5.7
4.8
4.9
5.0
4.7
4.8
5.0
5.0
7.1
7.2
6.0
6.1
6.2
5.8
6.0
6.1
6.3
9.2
9.2
7.3
7.1
7.3
7.4
7.0
7.2
7.3
11.4
11.5
14.5
14.6
11.5
11.1
11.3
11.5
10.8
11.2
11.4
18.1
18.1
14.6
14.0
14.3
14.6
13.7
14.1
14.5
9.2
8.9
9.1
9.2
8.7
9.0
9.1

注:红框内为v>10m/s,应采用循环润滑。

TP型平面包络环面蜗杆减速机低速轴轴端许用径向负荷Fr

减速器低速轴轴端许用径向负荷Fr

 

负荷
中心距a(mm)
80
100
125
160
200
250
315
400
500
Fr(N)
3900
4900
6800
8460
11200
14700
17800
22500
27500

 

TP系列减速机技术要求

接触斑点的大小

精度等级
项目
中心距a(mm)
80~160
>160~315
>315~630
7
蜗轮齿面接触斑点
按高度不小于70%   按宽度不小于70%
蜗杆齿面接触斑点
按长度不小于70%   接触部位偏向入口
8
蜗轮齿面接触斑点
按高度不小于60%   按宽度不小于60%
蜗杆齿面接触斑点
按长度不小于60%   接触部位偏向入口

接触斑点的大小

侧隙jC和jb

侧隙(μm)
中心距a(mm)
80~160
>160~315
>315~500
中等侧隙jC≤
220
380
530
较小保证侧隙jb≤
55
95
130

轴承的轴向间隙

轴承内径d1(mm)
轴向间隙(μm)
蜗杆轴承
蜗轮轴承
30
0
>30~50
0
20~50
>50~80
0
40~70
>80~120
0
50~100
>120~180
0
80~150

减速机的选用方法和润滑

    1)减速器的选用

    ①选用的已知条件:

    a.原动机类型及工作机负荷性质;

    b.额定输入功率P1(kW)或额定输出转矩T2(N·m);

    c.输入转速n1(r/min);

    d.最大输出转矩T2max(N·m)(对于低速传动的场合);

    e.传动比;

    f.输入输出轴的相对位置;

    g.输入输出轴的转向、装配型式。

    ②工作类型:

    a.负荷性质;

    b.每日运行时间(h);

    c.每小时启动次数;

    d.小时负荷率JC(%)。

    ③环境温度。

    ④输出轴轴端附加负荷。

    2)减速器的润滑

    ①蜗杆蜗轮啮合,一般采用浸油润滑,浸油液面,对于TPG型式,采用全浸;对于TPU式、TPA型式、TPS型式,液面与蜗杆轴线重合,当啮合滑动速度v>10m/s时,采用强迫润滑。

    ②在通常情况下,可根据滑动速度的大小,选择润滑油牌号,表1为推荐的润滑油牌号。

推荐润滑油牌号

 

黏度(cst/40℃)
润滑油
蜗轮蜗杆油牌号
适用滑动速度(m/s)
748~612
N680蜗轮油
1~2.5
506~414
N460蜗轮油
1~2.5
352~288
N320蜗轮油
2.5~5
242~198
N220蜗轮油
5~10

    ③润滑油不允许采用极压齿轮油。

    ④减速器的润滑油量按油标加注,可按表2所列油量备油。

润滑油油量

 

中心距a(mm)
80
100
125
160
200
250
315
400
500
油量(L)
1.6
2.7
4.7
8.8
16
28
50
85
160

    3)采用强制润滑

    润滑油黏度为242~198 cst/40℃,注油压力为1.5~2.5Pa,每分钟注油量按表3的规定。

强制润滑时的注油量

 

中心距a(mm)
80
100
125
160
200
250
315
400
500
注入量(L/min)
1.5
2
3
4
6
10
15
20
20
TEL:18168892286

在线咨询

在线客服
网站首页    |    公司简介    |    新闻中心    |    产品展示    |    售后服务    |    联系我们

Copyright © 2017-2020 版权所有:江苏龙一诺机械制造有限公司 All Rights Reserved.
地址:无锡市钱桥工业园

传真:0510-82628805
手机:18168892286
网站:http://www.txjsjxs.com

苏ICP备15006862号-3