|
产品展示
联系我们
地址:无锡市钱桥工业园
手机: 18168892286 传真:0510-82628805
|
|
产品展示
PRODUCT
当前位置:首页 > 产品展示
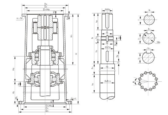
J、LSJ型机架(CD130B-86)BL摆线针轮行星减速机


SJ、LSJ型双支点机架主要参数及尺寸
| 机架代号 |
H0 |
H1 |
H3 |
H4 |
H5 |
H6 |
H7 |
D1 |
D2 |
D3 |
n1-M |
D4 |
D5 |
D6 |
a° |
n2-φ |
| SJ,LSJ55AB |
450 |
402 |
58 |
22 |
24 |
6 |
6 |
270 |
310 305 |
340 |
6-M10 8-M16 |
325 |
400 |
435 |
30 |
12-φ14 |
| SJ,LSJ65AB |
450 |
487 |
58 |
22 |
24 |
6 5 |
6 |
316 |
360 |
400 |
8-M12 (8-M16) |
350 |
420 |
460 |
30 |
12-φ18 |
| SJ,LSJ70AB |
450 |
487 |
528 |
22 |
24 |
6 5 |
6 |
316(320) 320 |
360 |
400 |
8-M12 8-M16 |
350 |
420 |
460 |
30 |
12-φ18 |
| SJ,LSJ80AB |
450 |
545 |
60 |
25 |
28 |
6 5 |
8 |
345 360 |
390 410 |
430 460 |
8-M16 8-M20 |
380 |
455 |
495 |
30 |
12-φ23 |
| SJ,LSJ90A |
600 |
569 |
69 |
25 |
40 |
7 |
8 |
400 |
450 |
490 |
12-M16 (12-M20) |
430 |
510 |
555 |
30 |
12-φ23 |
| SJ,LSJ100AB |
600 |
685 |
61 |
30 |
40 |
9 5 |
10 |
455(460) 470 |
520 |
580 |
12-M20 |
480 |
560 |
600 |
22.5 |
16-φ23 |
| SJ,LSJ110A |
600 |
685 |
61 |
38 |
40 |
11 |
10 |
520 |
590 |
650 |
12-M20 |
560 |
650 |
700 |
22.5 |
16-φ27 |
| SJ,LSJ120A |
600 |
685 |
61 |
38 |
40 |
11 |
10 |
520 |
590 |
650 |
12-M20 |
560 |
650 |
700 |
22.5 |
16-φ27 |
| SJ,LSJ130AB |
650 |
761 |
85 |
40 |
45 |
11 9 |
10 |
680 |
800 |
880 |
12-M30 |
720 |
810 |
880 |
18 |
20-φ27 |
| SJ,LSJ140A |
650 |
761 |
85 |
40 |
45 |
11 9 |
12 |
680 |
800 |
880 |
12-M30 |
720 |
810 |
880 |
18 |
20-φ27 |
| SJ,LSJ150AB |
650 |
761 |
76 |
50 |
50 |
14 10 |
12 |
820 |
940 |
1020 |
16-M30 |
720 |
810 |
880 |
18 |
16-φ33 |
| SJ,LSJ160AB |
650 |
780 |
81 |
50 |
50 |
14 10 |
12 |
820 |
940 |
1020 |
16-M30 |
840 |
940 |
1020 |
22.5 |
16-φ33 |
| SJ,LSJ180AB |
650 |
910 |
83 |
50 |
50 |
14 10 |
12 |
960 |
1080 |
1160 |
20-M30 |
970 |
1080 |
1160 |
18 |
20-φ33 |
| 型号 |
搅拌轴轴端尺寸 |
SJ型 |
LSJ型 |
| h(A/B) |
h0 |
h1 |
h2 |
h3 |
h4 |
h5 |
h6 |
h7 |
d0 |
d1 |
d2 |
M0 |
d3(h9) |
d4 |
b |
b2 |
b2 |
t |
t1 |
t2 |
H |
H2 |
重量(kg) |
H |
H2 |
重量(kg) |
| SJ,LSJ55AB |
307/302 |
80 |
118 |
15 |
24 |
300 |
120 |
40 |
3 |
55 |
57 |
57 |
M60×2 |
60 |
65 |
16 |
8 |
8 |
49 |
56 |
56 |
1070 |
312 |
170 |
1220 |
462 |
186 |
| SJ,LSJ65AB |
373 |
95 |
143 |
18 |
32 |
275 |
135 |
50 |
3 |
65 |
72 |
72 |
M75×2 |
72 |
80 |
18 |
10 |
10 |
58 |
59 |
70 |
1140 |
307 |
261 |
1290 |
457 |
277 |
| SJ,LSJ70AB |
373/367 |
95 |
143 |
18 |
32 |
275 |
135 |
50 |
3 |
70 |
72 |
72 |
M75×2 |
75 |
80 |
20 |
10 |
10 |
62.5 |
69 |
70 |
1140 |
307 |
261 |
12980 |
457 |
277 |
| SJ,LSJ80AB |
422/385 |
95 |
163 |
18 |
32 |
250 |
139 |
60 |
3 |
80 |
81 |
82 |
M85×2 |
85 |
90 |
22 |
10 |
10 |
71 |
79 |
80 |
1230 |
354 |
372 |
1380 |
504 |
388 |
| SJ,LSJ90A |
436 |
115 |
168 |
20 |
36 |
380 |
162 |
60 |
3 |
90 |
91 |
92 |
M95×2 |
95 |
110 |
25 |
12 |
12 |
81 |
89 |
90 |
1400 |
363 |
427 |
1550 |
513 |
447 |
| SJ,LSJ100AB |
532/510 |
135 |
178 |
24 |
42 |
360 |
182 |
60 |
3 |
100 |
110 |
112 |
M115×2 |
115 |
125 |
28 |
14 |
14 |
90 |
109 |
109.5 |
1510 |
350 |
515 |
1710 |
550 |
542 |
| SJ,LSJ110A |
489 |
145 |
178 |
24 |
42 |
380 |
182 |
60 |
3 |
110 |
111 |
112 |
M115×2 |
115 |
125 |
28 |
14 |
14 |
100 |
109 |
109.5 |
1510 |
350 |
621 |
1710 |
550 |
642 |
| SJ,LSJ120A |
489 |
145 |
178 |
24 |
42 |
380 |
182 |
60 |
3 |
120 |
122 |
122 |
N125×2 |
115 |
125 |
32 |
14 |
14 |
109 |
119 |
119.5 |
1510 |
350 |
641 |
1710 |
550 |
662 |
| SJ,LSJ130AB |
537/545 |
205 |
208 |
28 |
46 |
370 |
200 |
70 |
3 |
130 |
135 |
137 |
M140×2 |
140 |
150 |
32 |
14 |
14 |
119 |
132 |
134.5 |
1610 |
374 |
994 |
1810 |
574 |
1021 |
| SJ,LSJ140A |
537 |
205 |
208 |
28 |
48 |
370 |
200 |
70 |
3 |
130 |
135 |
137 |
M140×2 |
140 |
150 |
32 |
14 |
14 |
119 |
132 |
134.5 |
1610 |
374 |
994 |
1810 |
574 |
1021 |
| SJ,LSJ150AB |
根据减速机型号而定 |
220 |
208 |
32 |
52 |
370 |
200 |
70 |
3 |
150 |
155 |
156 |
M160×3 |
160 |
170 |
36 |
16 |
16 |
138 |
152 |
154 |
1660 |
410 |
1050 |
1860 |
610 |
1110 |
| SJ,LSJ160AB |
220 |
227 |
32 |
52 |
340 |
215 |
80 |
3 |
160 |
165 |
166 |
M170×3 |
170 |
180 |
40 |
16 |
16 |
147 |
182 |
164 |
1660 |
410 |
1060 |
1860 |
610 |
1120 |
| SJ,LSJ180AB |
290 |
242 |
36 |
58 |
310 |
230 |
90 |
3 |
180 |
185 |
186 |
M190×3 |
190 |
200 |
45 |
18 |
18 |
165 |
180 |
182 |
1710 |
402 |
1220 |
1920 |
602 |
1260 |
注:图示所注“h”仅与本样本BLD、LC-Ⅱ、DC-Ⅱ系列减速机相配,如选用其他型号或其他厂家减速机,“h”需另行计算。增高后的LSJ型机架其下部空间高度可容纳205、206或207型双端面机械密封。
|