|
产品展示
联系我们
地址:无锡市钱桥工业园
手机: 18168892286 传真:0510-82628805
|
|
产品展示
PRODUCT
当前位置:首页 > 产品展示
传动轴,搅拌轴

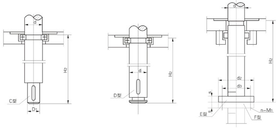
为方便设计和安装调试,在选用减速机、机架、联轴器,机械密封或填料箱、搅拌器后,可根据搅拌轴主参数d和L来选择搅拌轴,几家安装平面以上的搅拌轴尺寸由我公司根据所选机架来协调,无须设计单位出图。
 |
|
| 搅拌轴材质代号 |
| 中间轴承中点至机架安装平面巨力(无釜内联轴器,省略) |
| 带釜内联轴器分界面至机架安装平面巨力(无釜内联轴器,省略) |
| 搅拌轴末端至最下层搅拌器中点距离 |
| L/L1/L2-L为机架底平面至搅拌轴末端总长,L1、L2为搅拌器之间距离(只有一层L1,L2省略,有二层的L2省略) |
| |
| 搅拌轴直径 |
| 搅拌轴釜内部分的联结形式(C:配DT型刚性凸缘联轴器;D:配JQ或JJQ型夹壳联轴器;E:带焊接法兰式联轴器;F:带整体法兰式联轴器;G:整体轴,无釜内联轴器) |
| |
| 搅拌轴型式(A:不带搁圈;B:带搁圈,上装式;C:带搁圈,下装式) |
| 搅拌轴代号 |


釜内轴头尺寸表
|
d |
30 |
35 |
40 |
45 |
50 |
55 |
60 |
65 |
70 |
80 |
90 |
95 |
100 |
110 |
120 |
125 |
130 |
140 |
160 |
|
d1 |
25 |
30 |
35 |
40 |
45 |
50 |
55 |
60 |
65 |
75 |
85 |
90 |
90 |
100 |
110 |
115 |
120 |
125 |
140 |
|
d2 |
105 |
105 |
110 |
120 |
130 |
140 |
145 |
150 |
170 |
185 |
195 |
200 |
220 |
240 |
280 |
285 |
290 |
310 |
340 |
|
d3 |
70 |
70 |
75 |
85 |
95 |
105 |
110 |
115 |
125 |
140 |
150 |
155 |
170 |
190 |
210 |
215 |
220 |
235 |
265 |
|
s |
25 |
25 |
25 |
25 |
25 |
30 |
30 |
30 |
35 |
35 |
35 |
35 |
40 |
40 |
45 |
45 |
45 |
50 |
60 |
|
n-M1 |
6-M12
|
6-M16
|
6-M20
|
8-M20
|
8-M24
|
8-M30 |
8-M36
|
|
H2 |
250 |
250 |
250 |
250 |
350 |
350 |
480 |
480 |
480 |
550 |
580 |
580 |
650 |
700 |
750 |
800 |
800 |
900 |
1000 |
附表-金属材料代号
|
代号 |
S1 |
S2 |
S3 |
S4 |
|
材料牌号 |
OCr18Ni11Ti(321)(1Cr18Ni9Ti) |
OCr17Ni12Mo2(316) |
OCr18Ni9(304) |
OOCr19Ni11(304L) |
|
代号 |
S5 |
S6 |
S6 |
S8 |
|
材料牌号 |
OOCr17Ni14Mo2(316L) |
OCr18Ni12Mo2Ti |
OCr18nI14Mo2Cul(316Cu) |
OCr19Ni13Mo3(317) |
|
代号 |
T1 |
T2 |
T3 |
T4 |
|
材料牌号 |
O235 |
20-35 |
20R 20g |
45 |
|
代号 |
T5 |
T6 |
T7 |
T8 |
|
材料牌号 |
16Mng 16ZMnR |
15MnVg 15MnVR |
20Cr |
40Cr |
|