
本公司生产近30类,计140多种搅拌器,从最常见的(包括已有的HB5标准,SB90标准各种搅拌器)到各种复杂形状或特殊用途的搅拌器。可按H/T2123-91标准的各种规格尺寸系列制造,也可根据用户生产工艺需求,代为设计制造各种特殊要求、特殊规格或特殊用途的搅拌器。
搅拌器型号标注方法:
 |
|
| 材料代号 |
| 搅拌器轴孔径 |
| 搅拌器的外径, |
| 搅拌器型式代号 |
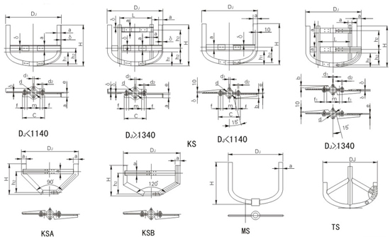
框、锚式搅拌器
椭圆底框式-KS、直角锥底框式-KSA、钝角锥底框式-KSB、锚式-MS、搪玻璃专用锚式-TS
此类搅拌器为慢速型搅拌器,适用于中高粘度液体的混和、传热或反应等过程。常在层流装操作,产生水平环向流,如为折叶或角钢型叶,可增加桨叶附近的涡流。可根据需要在桨上增加立叶和横梁,以增大搅拌范围。适用介质粘范围μ<105cP,转速n=1-100rpm。

框式、锚式搅拌器主要尺寸
| 碳钢、不锈钢 |
碳钢 |
不锈钢 |
重量 |
| D1 |
d |
H |
d1 |
h1 |
h2 |
L |
e |
m |
f |
N/n≤ |
a |
δ |
c |
d |
a |
δ |
b |
c |
f1 |
d2 |
碳钢、不锈钢 |
470 470 |
30 40 |
370 370 |
M8 M12 |
117 117 |
165 165 |
- - |
3 3 |
90 100 |
25 35 |
0.012 0.020 |
36 36 |
3 4 |
170 210 |
M8 M12 |
36 36 |
3 4 |
36 36 |
130 140 |
- - |
M8 M12 |
3.5/3.5 4.5/4.5 |
570 570 |
30 40 |
450 450 |
M8 M12 |
142 142 |
200 200 |
- - |
3 3 |
90 100 |
25 35 |
0.012 0.038 |
40 40 |
3 4 |
170 210 |
M8 M12 |
40 40 |
3 4 |
40 40 |
130 140 |
- - |
M8 M12 |
5/5 7.5/7.5 |
660 660 |
40 50 |
520 520 |
M12 M16 |
165 165 |
240 240 |
- - |
3 5 |
100 120 |
35 35 |
0.038 0.069 |
50 50 |
3 4 |
210 240 |
M12 M16 |
50 50 |
3 4 |
50 50 |
140 170 |
- - |
M12 M16 |
7/7 10/10 |
760 760 |
40 50 |
600 600 |
M12 M16 |
190 190 |
275 275 |
- - |
3 5 |
100 120 |
35 35 |
0.047 0.088 |
50 50 |
4 5 |
210 240 |
M12 M16 |
50 50 |
4 5 |
50 50 |
140 170 |
- - |
M12 M16 |
10/12 13/14 |
850 850 |
50 65 |
680 680 |
M16 M16 |
212 212 |
310 310 |
- - |
5 7 |
120 140 |
35 40 |
0.088 0.160 |
63 63 |
4 5 |
240 270 |
M16 M16 |
63 63 |
4 5 |
63 63 |
170 190 |
- - |
M16 M16 |
14/14 18/18 |
950 950 |
50 65 |
760 760 |
M16 M16 |
237 237 |
350 350 |
- - |
5 7 |
120 140 |
35 40 |
0.088 0.160 |
63 63 |
4 5 |
240 270 |
M16 M16 |
63 63 |
4 5 |
63 63 |
170 190 |
- - |
M12 M16 |
16/16 18/20 |
1140 1140 |
50 65 |
910 910 |
M16 M16 |
285 285 |
420 420 |
- - |
5 7 |
120 140 |
35 40 |
0.088 0.160 |
70 70 |
4 5 |
240 270 |
M16 M16 |
70 70 |
4 5 |
70 70 |
170 190 |
- - |
M12 M16 |
26/26 32/32 |
1340 1340 1340 |
50 65 80 |
1070 1070 1070 |
M16 M16 M18 |
335 335 335 |
460 450 450 |
670 670 670 |
5 7 7 |
120 140 170 |
50 50 50 |
0.088 0.250 0.470 |
80 80 80 |
5 5 6 |
270 290 330 |
M16 M16 M18 |
90 90 90 |
8 8 10 |
25 35 35 |
190 280 310 |
60 60 60 |
M12 M12 M12 |
50/52 50/55 62/69 |
1530 1530 1530 |
50 65 80 |
1220 1220 1220 |
M16 M16 M18 |
382 382 382 |
510 510 510 |
770 770 770 |
5 7 7 |
120 140 170 |
50 50 50 |
0.088 0.250 0.470 |
90 90 90 |
6 6 6 |
270 290 330 |
M16 M16 M16 |
100 100 100 |
8 10 10 |
25 35 45 |
270 290 320 |
60 60 60 |
M12 M12 M12 |
71/71 73/85 77/89 |
1730 1730 1730 |
65 80 95 |
1380 1380 1380 |
M16 M18 M22 |
432 432 432 |
580 580 580 |
870 870 870 |
7 7 7 |
140 170 200 |
70 70 70 |
0.250 0.470 0.815 |
100 100 100 |
6 6 7 |
330 370 400 |
M16 M18 M22 |
120 120 120 |
10 12 12 |
35 45 50 |
330 360 390 |
80 80 80 |
M16 M16 M16 |
88/105 95/105 113/135 |
1920 1920 1920 |
65 80 95 |
1530 1530 1530 |
M16 M18 M22 |
480 480 480 |
640 640 640 |
960 960 960 |
7 7 7 |
140 170 200 |
70 70 70 |
0.250 0.470 0.800 |
110 110 110 |
7 7 7 |
330 370 400 |
M16 M18 M22 |
130 130 130 |
10 12 12 |
35 45 50 |
330 360 390 |
80 80 80 |
M16 M16 M16 |
125/150 132/182 138/195 |
2120 2120 2120 |
80 95 110 |
1690 1690 1690 |
M18 M22 M22 |
530 530 530 |
710 710 710 |
1060 1060 1060 |
7 7 9 |
170 200 230 |
70 70 70 |
0.470 0.800 1.060 |
125 125 125 |
8 8 8 |
370 400 440 |
M18 M22 M22 |
150 150 150 |
12 12 14 |
45 50 60 |
360 390 420 |
100 100 100 |
M16 M16 M16 |
184/220 191/228 194/266 |
2320 2320 2320 |
80 95 110 |
1850 1850 1850 |
M18 M22 M22 |
580 580 580 |
780 780 780 |
1160 1160 1160 |
7 7 9 |
170 200 230 |
70 70 70 |
0.470 0.815 1.041 |
140 140 140 |
10 10 10 |
370 400 440 |
M18 M22 M22 |
160 160 1690 |
10 12 14 |
45 50 60 |
360 390 420 |
110 110 110 |
M16 M16 M16 |
270/324 277/385 281/435 |
2520 2520 2520 |
82 95 110 |
2010 2010 2010 |
M18 M22 M22 |
630 630 630 |
840 840 840 |
1260 1260 1260 |
7 7 9 |
170 200 230 |
70 70 70 |
0.470 0.850 1.100 |
160 160 160 |
10 10 10 |
370 400 440 |
M18 M22 M22 |
180 180 180 |
10 12 14 |
45 50 60 |
360 390 420 |
130 130 130 |
M16 M16 M16 |
336/403 341/484 350/564 |
备注:搅拌器内孔可根据用户要求制作,轮毂高度一般与内孔相一致。